Projektentwicklung - Gesamterschließung - städtebauliche Wohnkonzepte

Durch die eigene Planung, Vermarktung und Bebauung von Grundstücken können wir die Entwicklung von Baugebieten auf die individuellen Bedürfnisse der Bauherren zuschneiden.

Schall Wohnbebauung 1 Beispiel: Wohnbebauung - 20 Grundstücke mit Erschließungsstraße
Schall Wohnbebauung 2 Beispiel: Wohnbebauung - 50 Grundstücke mit Erschließungsstraße

Schall Wohnbebauung 3 Beispiel: Wohnbebauung mit Gastronomie-Gebäude
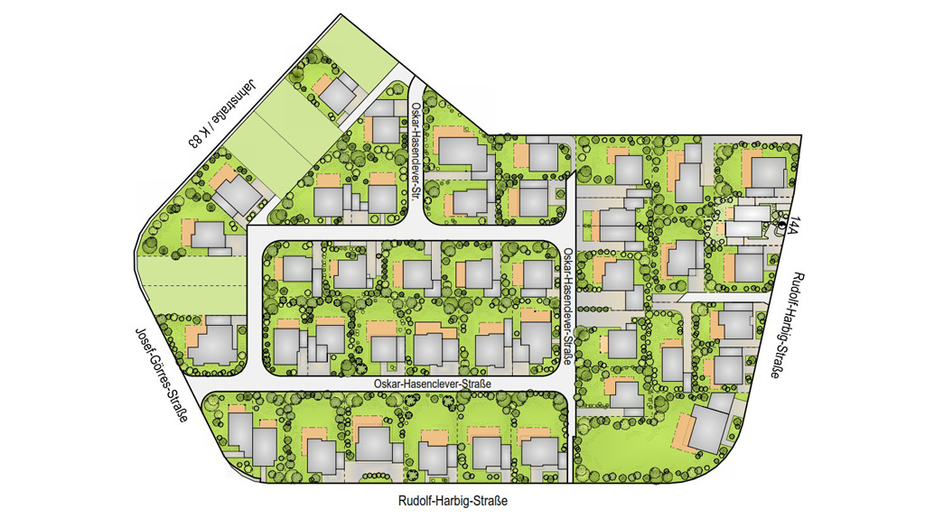
Beispiel: Wohnbebauung - 31 Grundstücke mit Erschließungsstraße